Продам 3-к квартиру (72м2), Левобережный. Автономка + ремонт, мебель, техника (№ 213-170-644)

Ціна: 59 900 $
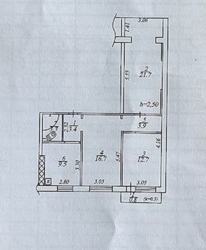
Характеристики
Ціна: | 59 900 $ |
---|---|
№ об'єкта: | 213-170-644 |
Кімнат: | 3 розд |
Поверх: | 7 / 9 ліфт |
Площа: | 72 / 51 / 10 м2 |
Санвузол: | 1 сумісний |
Балкон: | балкон+лоджія |
Адреса: Дніпропетровська, Дніпро, Індустріальний, Лівобережний 1,2,3, Березинская ул., 36
Продам 3-к квартиру с автономным отоплением на ул. Березинская, ж/м Левобережный/Березинка.
Площадь 72м2, 7/9 этаж.
Состояние отличное, ранее выполнен капитальный ремонт с заменой всех коммуникаций:
- установлено индивидуальное газовое отопление (двухконтурный газ.котел)
- теплый пол в санузле и на лоджии
- поменяна проводка, трубы, стояк, радиаторы
- выровнены стены, потолки, залита стяжка
- современный кафель, сантехника
- пол - виниловое покрытие
- наружное и внутренне утепление.
Делали все добротно, из качественных материалов (для себя).
Квартира полностью укомплектована мебелью и техникой - заходи и живи!
В тамбуре также выполнен ремонт, оборудованы шкафы для хранения.
Чистый подъезд, лифт работает, ухоженный двор с детской площадкой и местами для парковки авто.
В шаговой доступности школы, детсады, АТБ, Varus, Сильпо, много магазинов, рынок, кофейни, ТРЦ Караван, аптеки, банки, автостоянка, остановки общественного транспорта
Ключи на руках, показ в удобное для Вас время.