Продам 4-к квартиру в ЖК Счастливый /Тополь (№ 213-260-186)

Ціна: 138 000 $
Характеристики
| Ціна: | 138 000 $ |
|---|---|
| № об'єкта: | 213-260-186 |
| Кімнат: | 4 розд |
| Поверх: | 12 / 12 ліфт |
| Площа: | 103 / 51 / 25 м2 |
| Санвузол: | 2 |
| Балкон: | балкон+лоджія |
| Додатково: | новобудова |
Адреса: Дніпропетровська, Дніпро, Шевченківський, Тополь 1,2,3, Запорожское шоссе, 30ш
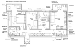
Продам 4-к квартиру в ЖК Счастливый на ж/м Тополь, ул. Запорожское шоссе 30.
Площадь 103м2, видовой 12/12 этаж.
Квартира спланирована как просторная кухня - гостиная, родительская спальня и 2 детские, 2 санузла.
Выполнен качественный ремонт. Индивидуальное газовое отопление, блоки управления теплого пола в каждой зоне. Кондиционеры в каждой комнате, монтаж дренажной трубы в центральную систему. Встроенные вентиляционные каналы для улучшения обращения воздуха.
Встроенная кухня с техникой от Bosch, двухстворчатый холодильник с динамической морозильной камерой Toshiba, встроенная полочка для хранения вин, огромное выдвижное карго высотой 2м, мощная вытяжная система, дополнительное освещение рабочей зоны с реагирующим на движение рук выключателем, гранитная раковина.
Корпусная мебель по индивидуальному проекту и мягкая мебель от ведущих производителей.
Новому владельцу будет передан архитектурный и дизайнерский проект, фотографии всех скрытых коммуникаций, а также контакты всех специалистов.
В продаже также есть гараж с новым ремонтом и системой автоматического включения света, автоматические ворота. Удобное расположение на наружном периметре секции 13.
Владелец в городе, документы в порядке, готовы к сделке.




























