Продам 1-к квартиру (42м2), Слобожанское/Новострой/Кирпич/Автономка (№ 213-295-351)
Ціна: 37 500 $

Адреса: Спортивная ул., Дніпро, Дніпропетровська, Індустріальний, Слобожанское (Юбилейное)
Характеристики
| Ціна: | 37 500 $ |
|---|---|
| № об'єкта: | 213-295-351 |
| Кімнат: | 1 |
| Поверх: | 9 / 9 ліфт |
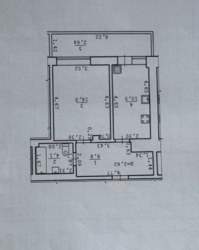
| Площа: | 42.3 / 16.3 / 10.5 м2 |
| Санвузол: | 1 сумісний |
| Балкон: | балкон |
| Додатково: | новобудова |
Опис
Продам 1-к квартиру с автономным отоплением в новострое, смт Слобожанское/Днепр, ул. Спортивная.
Просторная квартира 42,3м2, спланирована как 11-метровая кухня с выходом на большой балкон (9м2), уютная комната, совмещенный с/у, широкий, вместительный коридор.
Хорошее жилое состояние. Новые коммуникации, МП окна, натяжные потолки, современный кафель, сантехника. Отопление - двухконтурный газовый котел.
Кирпичный дом 2019 г.п., расположен за ЖК Брама.
Квартира расположена на 9-ом этаже + есть 10-й полноценный тех.этаж.
Чистый подъезд, 2 лифта(грузовой и пассажирский), ухоженная территория.
В шаговой доступности ATБ, Dmart, ресторан 'Хочу плов', детсад, школа, парк Дружбы, спорткомплекс Слобожанский с крытыми баскетбольными, волейбольными площадками, скалодромом и фитнес залом.


















